找回密码
 新用户注册
搜索

[转] 农村盖房设计大全!三十万以内的别墅!

[复制链接]
北京老K 发表于 2013-8-23 23:15 | 显示全部楼层 |阅读模式
本帖最后由 北京老K 于 2013-8-23 23:17 编辑

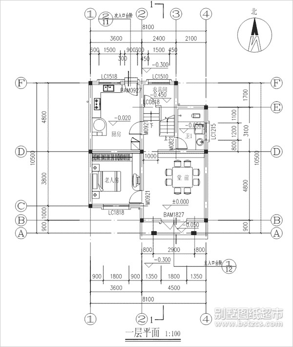
一、新农村住宅户型
户型一:

地基:12m×12m
占地面积:116平米,总建筑面积:213.53平米;

户型一a.jpg

户型一b.jpg


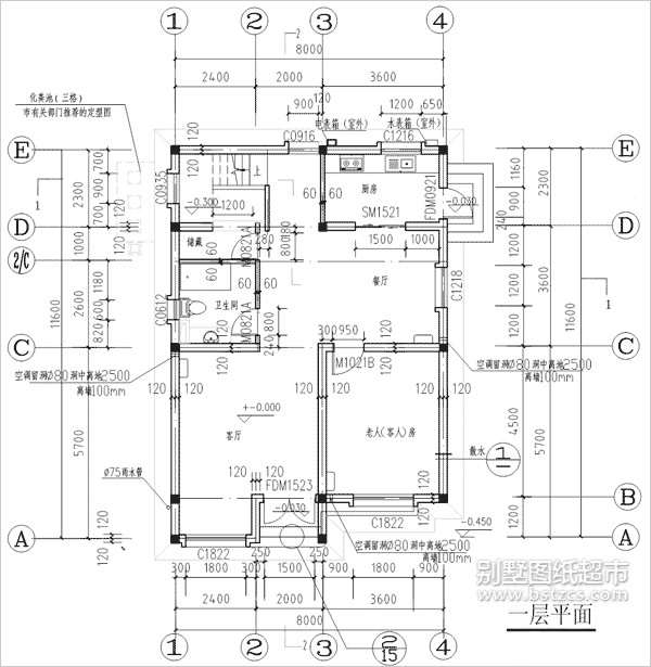
户型二

地基:9m×13m
占地面积:76.60平米,总建筑面积:185.11平米;
三大材料用量估算:水泥44.64吨,钢筋6.932吨,多孔砖85.643立方米;

户型二a.jpg

户型二b.jpg


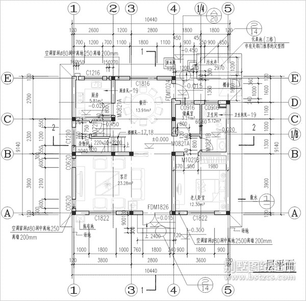
户型三

地基:9m×12m
占地面积:75.1平米,总建筑面积:119.7平米;
三大材料用量估算:水泥32.28吨,钢筋4.753吨,多孔砖74.179立方米;

户型三a.jpg

户型三b.jpg


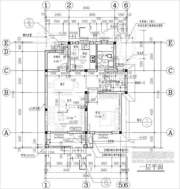
户型四:

地基:12m×10m
占地面积:109.68平米,总建筑面积:287.82平米;

户型四a.jpg

户型四b.jpg
MichaelChen 发表于 2013-8-23 23:17 | 显示全部楼层
K总准备回乡定居?
 楼主| 北京老K 发表于 2013-8-23 23:21 | 显示全部楼层

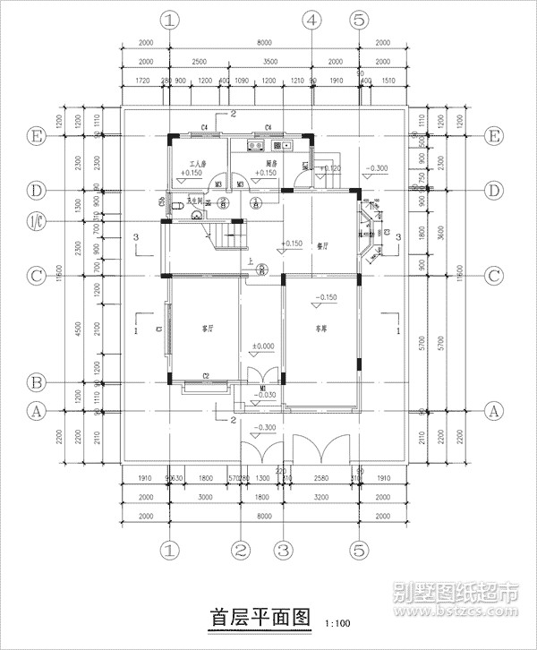
独栋别墅户型

独栋别墅即独门独院,上有独立空间,下有私家花园领地,是私密性很强的独立式住宅,表现为上下左右前后都属于独立空间,一般房屋周围都有面积不等的绿地、院落。这一类型是别墅历史最悠久的一种,也是别墅建筑的终极形式。在城市里花50万买一百平米,在农村却可以建这样的别墅:

户型一:

地基:14m×15m
占地面积:147.7平米,总建筑面积:366.4平米;

别墅1a.jpg

别墅1b.jpg


户型二:

地基:13m×16m
占地面积:130平方米,总建筑面积:310平方米;

别墅2a.jpg

别墅2b.jpg


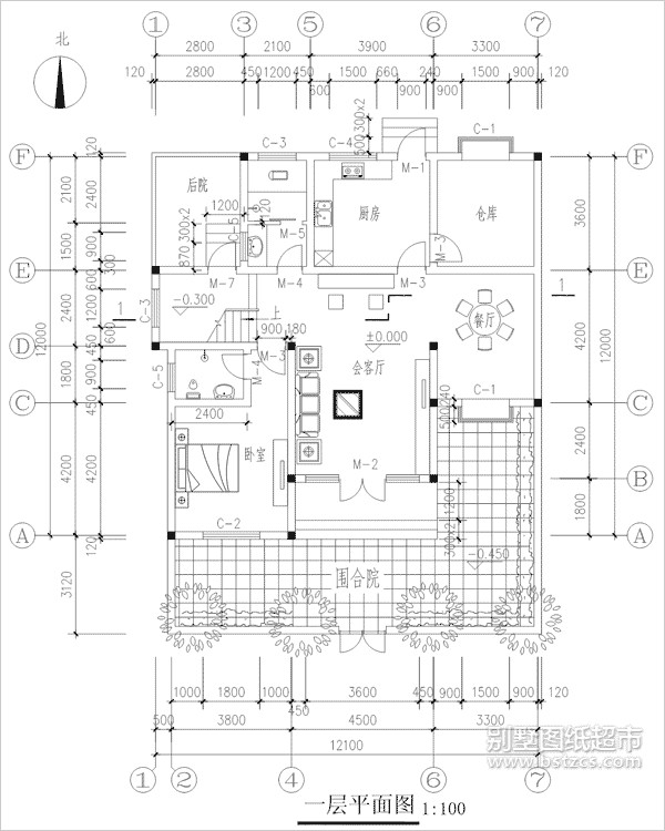
户型三:

地基:14m×13m
占地面积:170.38平米,总建筑面积:412.72平米;

别墅3a.jpg

别墅3b.jpg


户型四:

地基: 8m×12m
占地面积:88.7平米,总建筑面积:220.9平米;

别墅4a.jpg

别墅4b.jpg
 楼主| 北京老K 发表于 2013-8-23 23:27 | 显示全部楼层

精选小成本户型

如果感觉以上房屋建筑成本太高,手头又没有足够的资金,可以考虑以下户型:

户型一:

地基:12m×9m
占地面积:80.3平米,总建筑面积:80.3平米;
三大材料用量估算:水泥22.85吨,钢筋2.77吨,多孔砖57.702立方米;

小户型1b.jpg

小户型1a.jpg


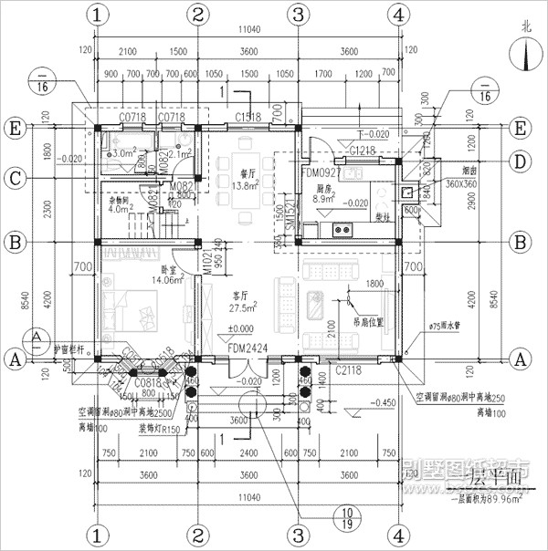
户型二:

地基:11m×9m
占地面积:89.96平米,总建筑面积:185.92平米;
三大材料用量估算:水泥44.07吨,钢筋6.544吨,多孔砖90.525立方米;

小户型2a.jpg

小户型2b.jpg


户型三:

地基:11m×10m
占地面积:89.66平米,总建筑面积:174.61平米;
三大材料用量估算:水泥40.61吨,钢筋5.929吨,多孔砖88.851立方米;

小户型3a.jpg

小户型3b.jpg
 楼主| 北京老K 发表于 2013-8-23 23:28 | 显示全部楼层
户型四:

地基:8m×12m
占地面积:75.1平米,总建筑面积:119.7平米;
三大材料用量估算:水泥49.47吨,钢筋7.771吨,多孔砖86.371立方米;

小户型4a.jpg

小户型4b.jpg


户型五:

地基:8m×10m
占地面积:80平米,总建筑面积:160平米;

小户型5a.jpg

小户型5b.jpg


户型六:
地基:8m×10m
占地面积:89.60平米,总建筑面积:194.94平米。

小户型6a.jpg

小户型6b.jpg
子虚 发表于 2013-8-23 23:32 | 显示全部楼层
老大,我给你三十一万人民币,你给我盖一幢
 楼主| 北京老K 发表于 2013-8-23 23:41 | 显示全部楼层
MichaelChen 发表于 2013-8-23 23:17
K总准备回乡定居?

看了这些图,心痒痒,想把房子改改。有谁懂结构?
 楼主| 北京老K 发表于 2013-8-23 23:44 | 显示全部楼层
子虚 发表于 2013-8-23 23:32
老大,我给你三十一万人民币,你给我盖一幢

好啊
白松 发表于 2013-8-24 20:54 | 显示全部楼层
三十万,在象山现在只能盖个地基吧。
毛毛 发表于 2013-8-24 21:24 | 显示全部楼层
现在的钱都不是钱阿
农村人 发表于 2013-8-25 09:10 | 显示全部楼层
北京老K 发表于 2013-8-23 23:44
好啊

在象山 盖起来的一定是烂尾楼
东海龙王 发表于 2013-8-25 12:56 | 显示全部楼层
本帖最后由 东海龙王 于 2013-8-25 12:58 编辑

在城市里花50万买一百平米,在农村却可以建这样的别墅。。。。50万买100平米在哪里,盖也是困难的
西楼 发表于 2013-8-25 16:42 | 显示全部楼层
30万啊? 那也就只能搭个架子。。。。。还不能贴磁砖。。一贴就超了。。打马赛克那种。我看行
您需要登录后才可以回帖 登录 | 新用户注册

本版积分规则

象山同乡网 ( 京ICP备10005750号 )

GMT+8, 2025-12-16 11:33

Powered by Discuz! X3.5

copyright by 54xsr.com

快速回复 返回顶部 返回列表