找回密码
 新用户注册
搜索

定塘镇绿色农产品加工园区(DT07地块)控制性详细规划

[复制链接]
xuqingsong 发表于 2012-12-7 19:49 | 显示全部楼层 |阅读模式
                                                                                     规   划    简    介
    1规划目的
为贯彻落实《中华人民共和国城乡规划法》和《浙江省城乡规划条例》,深化《象山县定塘镇总体规划(2007-2020》所确立的发展目标,明确本编制区未来发展方向及策略,实现工业集聚、节约集约土地和可持续发展,并更好地协调、整合规划区现有的各类规划,进而指导下阶段的规划和管理,特编制本控制性详细规划。
2规划范围
本次规划地段位于定塘镇镇区东北部,东到省道茅石公路、北至园北路、南到浮焦路、西到元享路,规划总用地面积34.69公顷。
3功能定位
定塘镇中小企业集聚点,以农产品加工和机械制造为主的工业小区。
4规划结构
本地块规划结构为“二轴六区”。
“二轴”: 指沿定山路和茅石公路的绿轴。
“六区”: 指定山路、峰北路、站前路分割而成的四个工业片区和两个商业服务区。
5用地规划
本地块城市建设用地面积34.12公顷。
工业用地:本地块工业用地均为二类工业用地,面积为21.64公顷,占城市建设用地面积的63.41%。

商业用地:规划商业用地1.50公顷,其中保留现状商业用地约0.79公顷,新增商业用地0.74公顷。
居住用地:规划居住用地约0.49公顷,规划居住用地全部为现状保留用地。
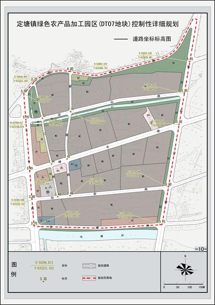
6道路交通规划
规划采用“方格网状”路网结构,形成“二纵五横”路网骨架。对外交通道路为省道茅石线,道路宽度为24米,规划为二级公路。区内道路分为主干路、次干路和支路三级。
客运站:保留位于站前路与园二路交叉口西北角现状客运站,用地面积0.33公顷。
7 市政工程规划
本地块平均日用水量为0.54万吨,最高日需水量为0.65万吨,由定塘水厂和大塘水厂联网供水。给水管网以环状管网供水为主。消防栓布置间距不宜小于120米。给水管在人行道下覆土深度不小于0.6米,在车行道下不小于0.7米。
8排水工程
本区排水体制采用雨、污分流制。
污水工程:本区平均日污水总量约为0.43万吨。本区污水排入定塘镇污水处理厂处理后排放。
9电力工程
本地用电负荷为0.41万千瓦,由定塘镇区变电所供电,供电电压为10kv。10KV配网采用环状结构,以提高本区供电可靠性。10KV及其以下电力线均采用地埋形式。
10 通信工程
规划本区固定电话用户需求量约为815门。
11环卫工程
位于本工业地块内产生的工业垃圾,鼓励回收利用。厂区内设置专用垃圾间,不可回收部分经过简易处理后,再由垃圾点集中收集,运往镇区内的垃圾处理站。
规划共设公共厕所2座。
12防灾规划
防洪排涝:本区防洪标准为20年一遇;防涝标准为20年一遇,24小时降雨一日排出。
消防:消防采用与生活给水相结合的低压制,消火栓间距不得大于120米。消防车通道的主体为本区范围内的主、次干道和支路。
抗震:本规划区位于地震动参数0.05(Ⅳ度)。新建的各类建筑应按国家质量技术监督局发布的《中国地震动参数区划图GB18306-2001》进行设计和施工,由建设行政管理部门监督管理。
人防:人防建设以镇区为主要组成部分,本编制区在不属于人防编制区范围,遂不设人防设施。
地质灾害防治:本区属于山区地质灾害低易及不易发区。周边山地都比较平缓,植被良好,没有大型的滑坡和泥石流,但应合理有效地开展防治工作,采用勘查、监测、避让、治理等防治措施。 定塘1.jpg 定塘2.jpg 定塘3.jpg 定塘4.jpg 定塘5.jpg
您需要登录后才可以回帖 登录 | 新用户注册

本版积分规则

象山同乡网 ( 京ICP备10005750号 )

GMT+8, 2025-12-16 21:51

Powered by Discuz! X3.5

copyright by 54xsr.com

快速回复 返回顶部 返回列表